por Praxis Mx en Nezahualcóyotl (Estado de México).

en categoría Ofertas remodelación, Ofertas remodelación casa

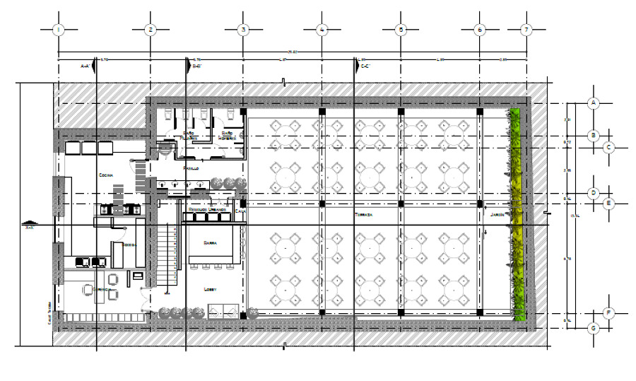
PROYECTO EJECUTIVO – OBRA NUEVA, REMODELACIÓN O REGULARIZACIÓN

???? ¿Qué incluye el paquete?

????Proyecto Arquitectónico

????Levantamiento (si aplica)

????Plantas arquitectónicas acotadas

????Cortes y fachadas

????Planta de conjunto

????Cuadro de áreas

????Detalles constructivos básicos

????Ingenierías (según alcance)

????Plano eléctrico (iluminación y contactos)

????Plano hidrosanitario

????Plano de gas (si aplica)

????Plano estructural básico

????Plano de carpinterías y cancelería

????Documentación técnica

????Memoria descriptiva

????Catálogo preliminar de conceptos

????Especificaciones técnicas básicas

???? Inversión

???? Paquete básico desde $8,000 MXN

(Proyecto arquitectónico para vivienda hasta 80 m²)

???? Proyectos mayores se cotizan según m² y complejidad.

???? Ideal para:

Licencias de construcción

Regularización de obra

Remodelaciones

Trámites municipales

Crédito Infonavit o bancario

???? Trabajo en CDMX y Área Metropolitana

Entrega digital en PDF + DWG (si se requiere)

???? Valor agregado

✔ Experiencia en proyectos ejecutivos reales

✔ Planos listos para construcción

✔ Asesoría normativa

✔ Acompañamiento en proceso de trámite (opcional)

Válido hasta 31/07/2026